neue Doppelhaushälfte (Haus D) KFW 55 in der Ortsmitte

86856 Hiltenfingen, Doppelhaushälfte zum Kauf

Kontaktdaten

Direktanfrage

* Pflichtangaben
 SSL-verschlüsselt

Objektdaten

  • Objekt ID
    4828797
  • Objekttypen
    Doppelhaushälfte, Haus
  • Adresse
    86856 Hiltenfingen
    Bayern
  • Etagen im Haus
    2
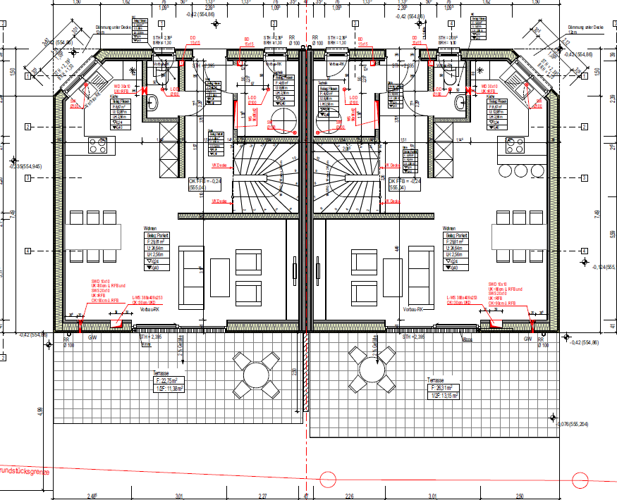
  • Wohnfläche ca.
    120 m²
  • Nutzfläche ca.
    120 m²
  • Grund­stück ca.
    168 m²
  • Zimmer
    4
  • Schlafzimmer
    3
  • Badezimmer
    1
  • Balkone
    1
  • Zustand
    Erstbezug
  • Ausstattung
    gehoben
  • Stellplätze gesamt
    2
  • Stellplätze
    2
  • Verfügbar ab
    30.05.2027
  • Provisionspflichtig
    Ja
  • Käufer­provision
    Die Provision fällt nur auf den Grundstücksanteil an
  • Kaufpreis
    485.000 EUR

Ausstattung / Merkmale

  • ✓ Badewanne
  • ✓ Balkon
  • ✓ Dusche
  • ✓ Garten/Gartennutzung
  • ✓ Gäste-WC

Energieausweis

  • Energieausweis
    nicht erforderlich

Lage

Die dargestellte Position der Immobilie ist nur eine ungefähre Angabe.

Objekt­beschreibung

Beschreibung

Die Projektplanung sieht vor das dieses Objekt über die Domus Regiobau GmbH gebaut wird. Diese ist schon seid Jahren ein zuverlässiger und effektiver Partner wenn es um den Bau von Häusern rund um die Region Schwabmünchen geht. Bei dem Objekt ist es aktuell noch möglich auf jegliche Wünsche im Rahmen des gezeigten Bauplans einzugehen genauso auch von der inneren Planung sind Ihnen noch alle Möglichkeiten offen.

Entdecken Sie Ihr neues Zuhause in dieser charmanten Doppelhaushälfte (Haus D). Mit einer Wohnfläche von ca. 120 m² bietet dieses Haus ausreichend Platz für Familien und Komfortliebhaber. Das Objekt liegt am Ende einer Zufahrtsstraße.

Die Immobilie verfügt über 4 Zimmer, darunter 3 geräumige Schlafzimmer, die Ruhe und Privatsphäre versprechen. Ein modernes Badezimmer sorgt für Bequemlichkeit und Stil.

Das Grundstück mit einer Größe von ca. 168 m² bietet Ihnen die Möglichkeit, Ihren grünen Daumen auszuleben oder einfach nur zu entspannen. Ein besonderes Highlight ist die nahezu Einmalige Lage mitten in der Ortes.

Stellplatz und/oder Garage kann für zusätzliche 14.990 € erworben werden.

Im Kaufpreis ist der anteilige Erwerb der Allgemeinflächen bereits berücksichtigt.
Diese Doppelhaushälfte vereint Funktionalität mit einem ansprechenden Design und wartet darauf, von Ihnen persönlich zum Leben erweckt zu werden.


Immobiliendaten-Import und Darstellung für WordPress: WP-ImmoMakler®